Ieškoti

Iš viso rezultatų:
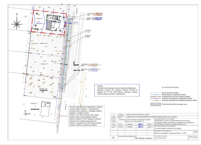
Visuomenės informavimas apie parengtą poilsio paskirties pastato (un. Nr. 2597-2000-7136) Jūros g..30, Palangoje, rekonstravimo, šalinant savavališkos statybos padarinius, statybos projektą Visuomenės informavimas apie parengtą poilsio paskirties pastato (un. Nr. 2597-2000-7136) Jūros g..30, Palangoje, rekonstravimo, šalinant savavališkos statybos padarinius, statybos projektą Visuomenės informavimas apie numatomą inžinerinių tinklų-vandentiekio ir nuotekų šalinimo tinklų Austėjos g. iki sklypo Austėjos g. 21, Palangoje, naujos statybos projektą Visuomenės informavimas apie numatomą inžinerinių tinklų-vandentiekio ir nuotekų šalinimo tinklų Austėjos g. iki sklypo Austėjos g. 21, Palangoje, naujos statybos projektą Visuomenės informavimas apie numatomą asmeninės rekreacijos paskirties grupės, asmeninio poilsio paskirties pastatų, adresu Žiogų g. 1, Palangoje, statybos projektą Visuomenės informavimas apie numatomą asmeninės rekreacijos paskirties grupės, asmeninio poilsio paskirties pastatų, adresu Žiogų g. 1, Palangoje, statybos projektą Visuomenės informavimas apie numatomą svečių namų paskirties pastato, Vaivorykštės g. 64, Palangoje, statybos projektą Visuomenės informavimas apie numatomą svečių namų paskirties pastato, Vaivorykštės g. 64, Palangoje, statybos projektą Visuomenės informavimas apie numatomą daugiabučių gyvenamųjų pastatų (6.3) adresu Medvalakio g. 23b, Palangoje, statybos projektą Visuomenės informavimas apie numatomą daugiabučių gyvenamųjų pastatų (6.3) adresu Medvalakio g. 23b, Palangoje, statybos projektą Visuomenės informavimas apie parengtą asmeninės rekreacijos paskirties grupės, asmeninio poilsio paskirties pastato Žiogų g. 9, Palangoje, statybos projektą Visuomenės informavimas apie parengtą asmeninės rekreacijos paskirties grupės, asmeninio poilsio paskirties pastato Žiogų g. 9, Palangoje, statybos projektą Visuomenės informavimas apie parengtą Šventosios jūrų uosto infrastruktūros - susiekimo komunikacijų: vandens uostų statinių (krantinių ir kranto sutvirtinimo), Prieplaukos g. 26, Palanga, statybos projektą Visuomenės informavimas apie parengtą Šventosios jūrų uosto infrastruktūros - susiekimo komunikacijų: vandens uostų statinių (krantinių ir kranto sutvirtinimo), Prieplaukos g. 26, Palanga, statybos projektą Visuomenės informavimas apie parengtą vienbučių ir dvibučių paskirties grupės, dvibučių paskirties gyvenamojo pastato ir pagalbinių pastatų paskirties grupės, pagalbinio ūkio paskirties negyvenamojo pastato adresu: Žvaigždžių g. 1, Palangoje statybos projektą Visuomenės informavimas apie parengtą vienbučių ir dvibučių paskirties grupės, dvibučių paskirties gyvenamojo pastato ir pagalbinių pastatų paskirties grupės, pagalbinio ūkio paskirties negyvenamojo pastato adresu: Žvaigždžių g. 1, Palangoje statybos projektą Visuomenės informavimas apie parengtą "Nuotekų šalinimo tinklų (unik. Nr. 4400-4049-5785), inžinerinių tinklų grupės, demontuojant atkarpą, adresu Vytauto g. 32, Palangoje, rekonstravimo projektas" projektinius pasiūlymus bei viešą svarstymą su visuomene Visuomenės informavimas apie parengtą "Nuotekų šalinimo tinklų (unik. Nr. 4400-4049-5785), inžinerinių tinklų grupės, demontuojant atkarpą, adresu Vytauto g. 32, Palangoje, rekonstravimo projektas" projektinius pasiūlymus bei viešą svarstymą su visuomene Visuomenės informavimas apie parengtu mokslo paskirties pastato, visuomeninių negyvenamųjų pastatų grupės, Maironio g. 8, Palanga, rekonstravimo projekto projektinius pasiūlymus bei viešą svarstymą su visuomene Visuomenės informavimas apie parengtu mokslo paskirties pastato, visuomeninių negyvenamųjų pastatų grupės, Maironio g. 8, Palanga, rekonstravimo projekto projektinius pasiūlymus bei viešą svarstymą su visuomene