Ieškoti

Iš viso rezultatų:

Visuomenės informavimas apie parengtą daugiabučio gyvenamojo namo dalies (buto nr.66) Bangų g. 6-66, Palanga kapitalinio remonto, savavališkos statybos įteisinimo projektą

Visuomenės informavimas apie parengtą daugiabučio gyvenamojo namo dalies (buto nr.66) Bangų g....
2026-02-03

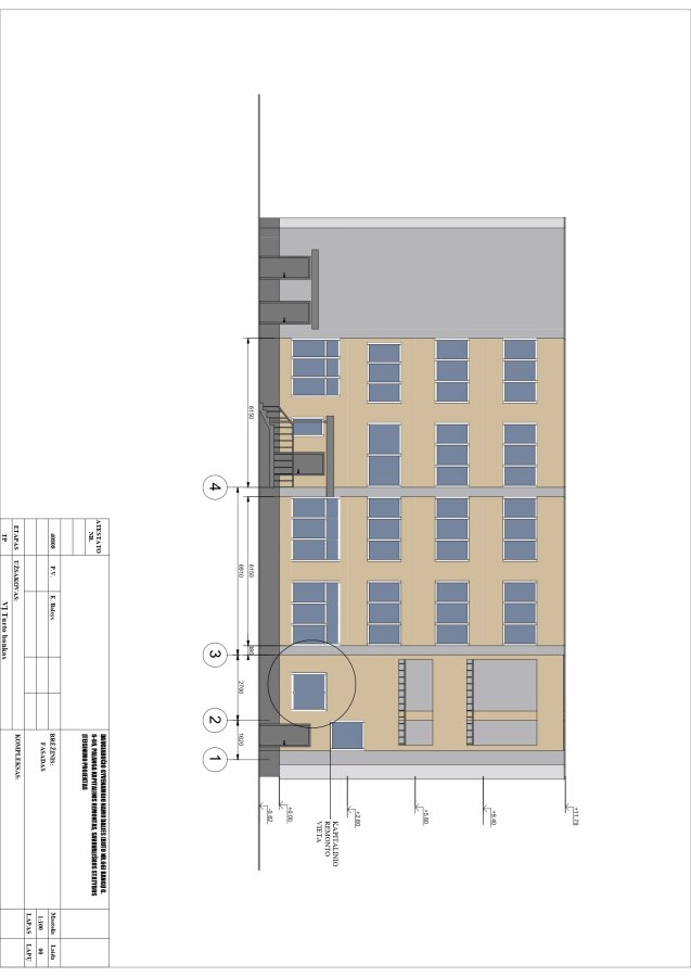
DAUGIABUČIO GYVENAMOJO NAMO DALIES (BUTO NR.66) BANGŲ G. 6-66, PALANGA KAPITALINIS REMONTAS, SAVAVALIŠKOS STATYBOS ĮTEISINIMO PROJEKTAS

Statytojas (-ai)

VĮ Turto bankas, info@turtas.lt, +37052780900

Statinio (-ių) duomenys

Statinio tipas DAUGIABUTIS

Paskirtis Daugiabučių

Adresas Palanga, Bangų g. 6-66

Žemės sklypo kadastro Nr., sklypo geografinės koordinatės (X, Y) Nėra X: 6202928 Y: 317160

Žemės sklypo esama pagrindinė naudojimo paskirtis ir būdas Valstybinė žemė, kurioje nesuformuoti žemės sklypai, Nėra

Statybos rūšis Statinio kapitalinis remontas

Unikalus Nr. 2597-5000-1016

Projektinius pasiūlymus parengęs asmuo ar jo įgaliotas atstovas (-ai)

Projektuotojas Egidijus Balsys

El. p. info@salanta.lt   tel. +37068585829

Kur galima susipažinti su projektiniais pasiūlymais

Adresas Vilnius, Kęstučio g. 45

Laikas Darbo dienomis I – IV 7.30 – 16.30 val. V 7:30 - 15:15. Pietų pertrauka 11.30 – 12.15.

Tel. +37068585829

Kaip galima teikti pasiūlymus projektuotojui dėl projektinių pasiūlymų

El. p. info@salanta.lt

Pasiūlymus galima teikti iki 2026-02-23

Kur ir kada vyks viešasis susirinkimas

Nuoroda į viešo susirinkimo transliaciją (viešas susirinkimas vyks nuotoliniu būdu) https://us05web.zoom.us/j/88575668713?pwd=QS3PLyGAAP7FmJWHRswe65kISk8I4I.1 Meeting ID: 885 7566 8713 Passcode: 7g8azJ

Data ir laikas 2026-02-23 15:00val.

Kita informacija Architektūros ir teritorijų planavimo skyriuje (vestibiulyje, stiklinta patalpa)

PROJEKTINIAI PASIŪLYMAI

Informacija atnaujinta 2026-02-03 15:10