Ieškoti

Iš viso rezultatų:

Visuomenės informavimas apie parengtą daugiabučio gyvenamojo namo dalies (buto nr. 66) Bangų g. 6-66, Palanga rekonstravimo, savavališkos statybos įteisinimo, projektą

Visuomenės informavimas apie parengtą daugiabučio gyvenamojo namo dalies (buto nr. 66) Bangų g....
2025-12-10

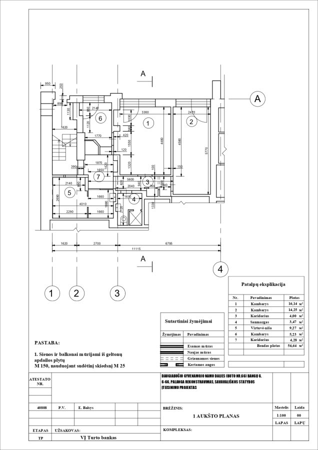
DAUGIABUČIO GYVENAMOJO NAMO DALIES (BUTO NR.66) BANGŲ G. 6-66, PALANGA REKONSTRAVIMAS, SAVAVALIŠKOS STATYBOS ĮTEISINIMO PROJEKTAS

Statytojas (-ai)

VĮ Turto bankas, info@turtas.lt, +37052780900

Statinio (-ių) duomenys

Statinio tipas DAUGIABUČIO GYVENAMOJO NAMO DALIES (BUTO NR.66) BANGŲ G. 6-66, PALANGA REKONSTRAVIMAS

Paskirtis Daugiabučių

Adresas Palanga, Bangų g. 6-66

Žemės sklypo kadastro Nr., sklypo geografinės koordinatės (X, Y) Nėra X: 6202955 Y: 317124

Žemės sklypo esama pagrindinė naudojimo paskirtis ir būdas Valstybinė žemė, kurioje nesuformuoti žemės sklypai, Nėra

Statybos rūšis Statinio rekonstravimas

Unikalus Nr. 2597-5000-1016

Projektinius pasiūlymus parengęs asmuo ar jo įgaliotas atstovas (-ai)

Projektuotojas Salanta MB

El. p. info@salanta.lt   tel. +37068585829

Kur galima susipažinti su projektiniais pasiūlymais

Adresas Vilnius, Kęstučio g. 45

Laikas Darbo dienomis I – IV 7.30 – 16.30 val. V 7:30 - 15:15. Pietų pertrauka 11.30 – 12.15

Tel. +37061520115

Kaip galima teikti pasiūlymus projektuotojui dėl projektinių pasiūlymų

El. p. info@salanta.lt

Pasiūlymus galima teikti iki 2025-12-30

Kur ir kada vyks viešasis susirinkimas

Nuoroda į viešo susirinkimo transliaciją (viešas susirinkimas vyks nuotoliniu būdu) Join Zoom Meeting https://us05web.zoom.us/j/81059909761?pwd=IIChgWDQGMwOquFULohCYn2xlaOd2j.1 Meeting ID: 810 5990 9761 Passcode: 1Sbhrn

Data ir laikas 2026-01-12 15:00 val.

Kita informacija Viešinimo susirinkimas vyks Palangos miesto savivaldybės patalpose (Vytauto g. 112, LT-00153 Palanga, Architektūros ir teritorijų planavimo skyriuje (vestibiulyje, stiklinta patalpa)

PROJEKTINIAI PASIŪLYMAI

 

Informacija atnaujinta 2025-12-10 13:49