Ieškoti

Iš viso rezultatų:

Patikslinti Šventosios gyvenvietės, Palangos miesto bendrajame plane pažymėtos kaip B10 kvartalas, detaliojo plano koregavimo žemės sklype, Paupio g. 12, Palangoje sprendiniai

Patikslinti Šventosios gyvenvietės, Palangos miesto bendrajame plane pažymėtos kaip B10...
2025-03-18

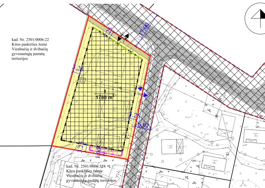
Informuojame visuomenę apie parengtą Šventosios gyvenvietės, Palangos miesto bendrajame plane pažymėtos kaip B10 kvartalas, detaliojo plano, patvirtinto 2012-11-29 d. Palangos miesto savivaldybės tarybos sprendimu Nr. T2-311, sprendinių koregavimą žemės sklype (kad. Nr. 2501/0006:359), Paupio g. 12, Palanga, supaprastinta tvarka, pagal LR Teritorijų planavimo įstatymo 28 str. 9 d., pakoreguotą pagal Palangos miesto savivaldybės teritorijų planavimo komisijoje derinančių institucijų pastabas.
Planuojama teritorija: žemės sklypas (kad. Nr. 2501/0006:359), Paupio g. 12, Palanga, plotas – 0.1780 ha.
Planavimo organizatorius: Palangos miesto savivaldybės administracijos direktorius, Vytauto g. 112, Palanga, LT-00153. Tel. (0 460) 48705, (0 460) 41406, el. paštas – administracija@palanga.lt, internetinė svetainė www.palanga.lt.
Projekto iniciatorius: Fiziniai asmenys.
Projekto rengėjas: MB Projekcija LT, PV D. Orentienė, teritorijų planavimo atestato Nr. TPV 0073, el. paštas – budrytedaiva@gmail.com, tel. Nr. +37062305265.
Planavimo tikslai: Šventosios gyvenvietės, Palangos miesto bendrajame plane pažymėtos kaip B10 kvartalas, detaliojo plano, patvirtinto 2012-11-29 d. Palangos miesto savivaldybės tarybos sprendimu Nr. T2-311, sprendinių koregavimas žemės sklype (kad. Nr. 2501/0006:359), Paupio g. 12, Palanga, naikinant statybos liniją, koreguojant statinių statybos zoną, statybos ribą ir susisiekimo komunikacijų išdėstymo principus, joms funkcionuoti reikalingų servitutų poreikis.
Su pakoreguotu teritorijų planavimo dokumentu susipažinti galima Palangos miesto savivaldybės internetinėje svetainėje www.palanga.lt. ir teritorijų planavimo ir statybos vartai informacinėje sistemoje www.planuojustatau.lt, TPD Nr. K-VT-25-24-1092.

Aiškinamasis raštas
Brėžinys

Informacija atnaujinta 2025-03-18 10:09