Ieškoti

Iš viso rezultatų:

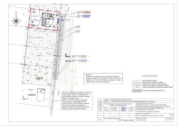
Visuomenės informavimas apie numatomą inžinerinių tinklų-vandentiekio ir nuotekų šalinimo tinklų Austėjos g. iki sklypo Austėjos g. 21, Palangoje, naujos statybos projektą

Visuomenės informavimas apie numatomą inžinerinių tinklų-vandentiekio ir nuotekų šalinimo tinklų...
2025-05-22

Inžinerinių tinklų-vandentiekio ir nuotekų šalinimo tinklų Austėjos g. iki sklypo Austėjos g. 21, Palangoje, naujos statybos projektas

Statytojas (-ai)

UAB "Palangos vandenys", ofisas@palangosvandenys.lt, +37046041221

Statinio (-ių) duomenys

Statinio tipas Inžineriniai tinklai

Paskirtis Vandentiekio tinklų

Adresas Palangos miesto sav., Palangos m. sav. teritorija

Žemės sklypo kadastro Nr., sklypo geografinės koordinatės (X, Y) Nėra X: 6203301 Y: 317939

Žemės sklypo esama pagrindinė naudojimo paskirtis ir būdas Valstybinė žemė, kurioje nesuformuoti žemės sklypai, Nėra

Statybos rūšis Naujo statinio statyba

Statinio tipas Inžineriniai tinklai

Paskirtis Nuotekų šalinimo tinklų

Adresas Palangos miesto sav., Palangos m. sav. teritorija

Žemės sklypo kadastro Nr., sklypo geografinės koordinatės (X, Y) Nėra X: 6203301 Y: 317939

Žemės sklypo esama pagrindinė naudojimo paskirtis ir būdas Valstybinė žemė, kurioje nesuformuoti žemės sklypai, Nėra

Statybos rūšis Naujo statinio statyba

Projektinius pasiūlymus parengęs asmuo ar jo įgaliotas atstovas (-ai)

Projektuotojas Antanas Žutautas

El. p. zutautas@gmail.com   tel. 869920922

Kur galima susipažinti su projektiniais pasiūlymais

Adresas Palangos miesto sav., Palanga, Ilgoji g. 63

Nuoroda https://palanga.lt/skelbimai

Laikas 2025-06-09, 14 val. (Iš anksto susitarus telefonu)

Tel. +37069920922

Kaip galima teikti pasiūlymus projektuotojui dėl projektinių pasiūlymų

El. p. zutautas@gmail.com

Kitu būdu Telefonu +37069920922

Pasiūlymus galima teikti iki 2025-06-09

Kur ir kada vyks viešasis susirinkimas

Adresas (viešas susirinkimas nuotoliniu būdu nevyks) Palangos miesto sav., Palanga, Vytauto g. 112

Data ir laikas 2025-06-09 15:00

Kita informacija Architektūros ir teritorijų planavimo skyriuje ( vestibiulyje, stiklinta patalpa)

Projektiniai pasiūlymai

Informacija atnaujinta 2025-05-22 16:00