Ieškoti

Iš viso rezultatų:

Pakoreguoti Šventosios gyvenvietės detaliojo plano koregavimo žemės sklypuose Paukščių takas 7, 9, 11, 13, Palangoje sprendiniai

Pakoreguoti Šventosios gyvenvietės detaliojo plano koregavimo žemės sklypuose Paukščių takas 7,...
2025-06-18

Vadovaujantis LR Teritorijų planavimo įstatymo 37 straipsnio 3 dalimi, informuojame apie teritorijų planavimo dokumentą (TPD) – Šventosios gyvenvietės detaliojo plano koregavimas žemės sklypuose Paukščių takas 7, 9, 11, 13, Palangoje, kurio sprendiniai buvo pakartotinai pakoreguoti, įvertinus teritorijų planavimo dokumentą derinančių institucijų pastabas teritorijų planavimo proceso baigiamojo etapo teritorijų planavimo dokumento derinimo stadijos metu. 

Pakoreguoti detaliojo plano sprendiniai įkelti į TPDRIS sistemą (TPS vartai, www.planuojustatau.lt), projekto TPD Nr. K-VT-25-22-587.

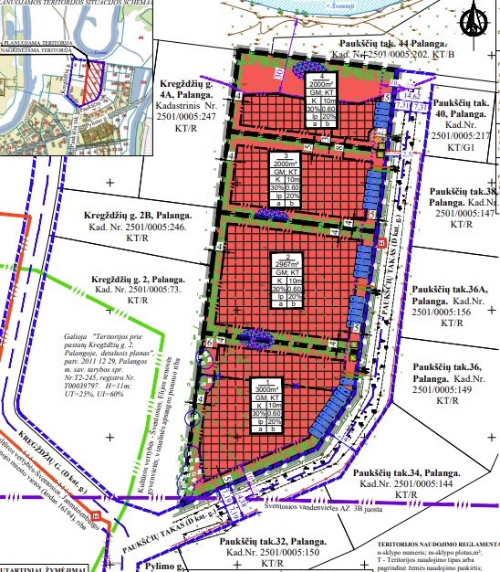
Planuojama teritorija: žemės sklypai Paukščių takas 7, 9, 11, 13, Palangoje. Planuojamos teritorijos plotas–  apie 0.9967 ha.

Planavimo organizatorius– Palangos miesto savivaldybės administracijos direktorius, Vytauto g. 112, Palanga. Tel. 0 460 48705, el. paštas: administracija@palanga.lt; www.palanga.lt.

Planavimo iniciatorius: fiziniai asmenys M.Š., J.P., E.R.

Plano rengėjas: UAB "Vakarų regiono projektai", Vytauto g. 120-7, Palanga, tel. +370 698 83701., El.paštas: info.vrp@gmail.com. Projekto vadovas – architektas Rimvydas Grikšas.

Planavimo pagrindas – Palangos miesto savivaldybės administracijos direktoriaus 2022 m. birželio 14 d. įsakymas Nr. A1-930,    2022 m. spalio 12 d. įsakymas Nr. A1-1579,    2022 m. gruodžio 14d. įsakymas Nr. A1-1962. TPD uždaviniai – detalizuojant Palangos miesto bendrajame plane nustatytus teritorijos naudojimo privalomuosius reikalavimus, nustatyti teritorijų naudojimo reglamentus, suplanuoti optimalų planuojamos teritorijos inžinerinių komunikacijų koridorių tinklą, nurodyti specialiąsias žemės naudojimo sąlygas, suformuoti optimalią urbanistinę struktūrą, numatyti priemones gamtos ir nekilnojamajam kultūros paveldui išsaugoti ir naudoti.    Planavimo tikslai – Optimalios urbanistinės struktūros numatymas, suplanuojant inžinerinių komunikacijų tinklus, inžinerinei infrastruktūrai reikalingų teritorijų ir (ar) inžinerinių komunikacijų koridorių ribas, žemės sklypų pertvarkymas, žemės sklypų padalijimas, teritorijos naudojimo reglamentų nustatymas, Šventosios gyvenvietės detaliojo plano, patvirtinto Palangos miesto tarybos 2000 m. kovo 21 d. sprendimo Nr. 38 2 punktu, koregavimas planuojamoje teritorijoje.

Brėžinys
Aiškinamasis raštas

Informacija atnaujinta 2025-06-18 09:11