Ieškoti

Iš viso rezultatų:

Informuojame apie „Specialiosios paskirties pastato, Užkanavės g. 31, Palangoje, keičiant paskirtį į poilsio pastatą su maitinimo paskirties patalpomis, paprastojo remonto projektas“ projektinius pasiūlymus bei viešą svarstymą su visuomene

Informuojame apie „Specialiosios paskirties pastato, Užkanavės g. 31, Palangoje, keičiant...
2025-01-22

Informuojame apie „Specialiosios paskirties pastato, Užkanavės g. 31, Palangoje, keičiant paskirtį į poilsio pastatą su maitinimo paskirties patalpomis, paprastojo remonto projektas“ projektinius pasiūlymus bei viešą svarstymą su visuomene

 

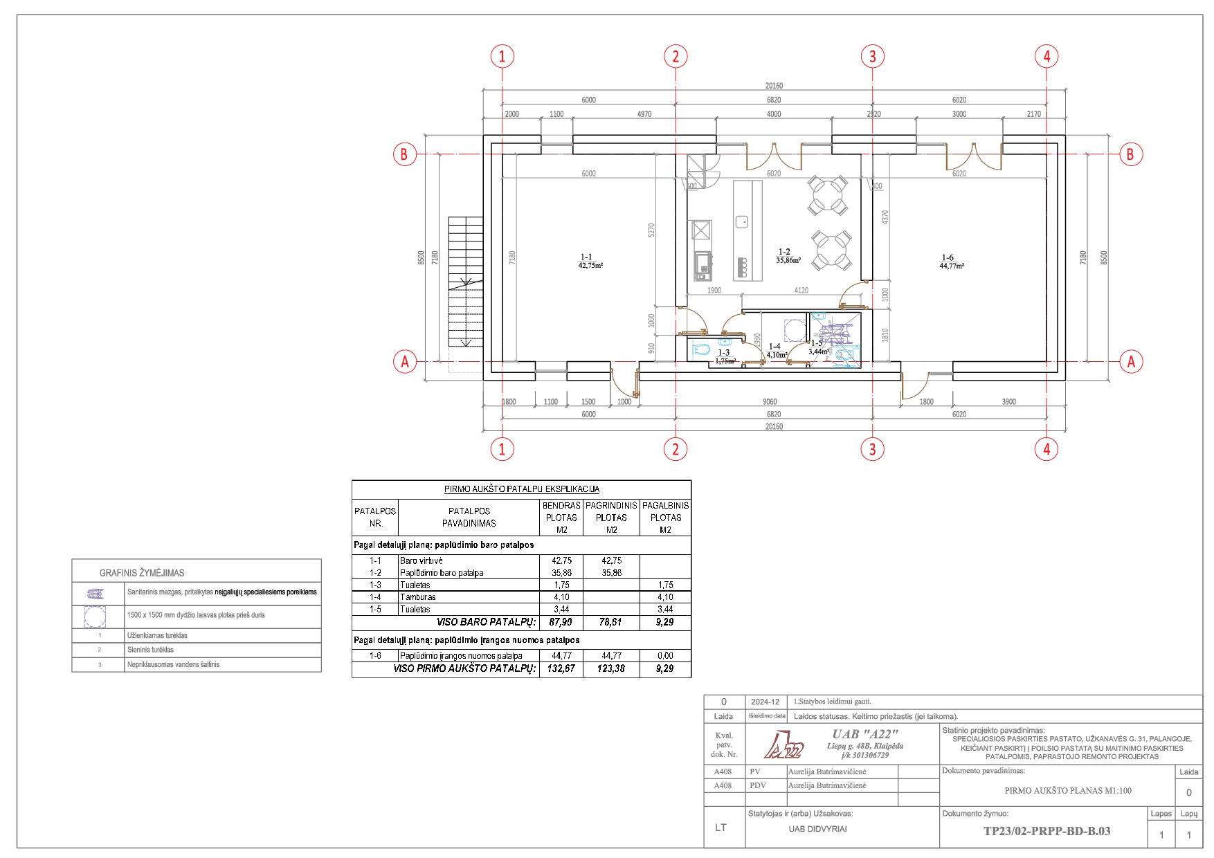
Projekto pavadinimas „Specialiosios paskirties pastato, Užkanavės g. 31, Palangoje, keičiant paskirtį į poilsio pastatą su maitinimo paskirties patalpomis, paprastojo remonto projektas“.

 

Statinio (-ių) duomenys:

Statinio tipas - poilsio pastatas

Paskirtis – Specialiųjų. Būsima paskirtis - Viešojo poilsio.

Adresas -  Palanga, Užkanavės g. 31.

Žemės sklypo kadastro Nr. 2501/0017:159, sklypo geografinės koordinatės (X, Y) 2501/0017:159 X: 6206842 Y: 317007.

Žemės sklypo esama pagrindinė naudojimo paskirtis ir būdas - kitos paskirties žemė, rekreacinės teritorijos.

Statybos rūšis -  statinio paprastasis remontas/paskirties keitimas.

Unikalus Nr. 2596-7003-3016.

 

Statinio tipas – tvora.

Paskirtis - kitos paskirties.

Adresas - Užkanavės g. 31 Palanga.

Žemės sklypo kadastro Nr. 2501/0017:159, sklypo geografinės koordinatės (X, Y) 2501/0017:159 X: 6206842 Y: 317007.

Žemės sklypo esama pagrindinė naudojimo paskirtis ir būdas - kitos paskirties žemė, rekreacinės teritorijos.

Statybos rūšis - statinio paprastasis remontas.

Unikalus Nr. 2596-7003-3016.

 

Statinio tipas - lauko tualetas.

Paskirtis - kitos paskirties

Adresas - Užkanavės g. 31, Palanga.

Žemės sklypo kadastro Nr. 2501/0017:159, sklypo geografinės koordinatės (X, Y) 2501/0017:159 X: 6206842 Y: 317007.

Žemės sklypo esama pagrindinė naudojimo paskirtis ir būdas - kitos paskirties žemė, rekreacinės teritorijos

Statybos rūšis - statinio paprastasis remontas.

Unikalus Nr. 2596-7003-3016

 

Projektinius pasiūlymus parengęs asmuo ar jo įgaliotas atstovas (-ai)

Projektuotojas - UAB „A22“ el. p. a22architektai@gmail.com tel. 061672219 Architektas - Aurelija Butrimavičienė tel. +37061672219, projekto vadovė architektė Aurelija Butrimavičienė, tel.: (+370 616) 72219.

 

Statytojas - UAB „Didvyriai“  įm. kodas 301113598. Birutės al. 22, LT-00136 Palanga, el. p. florossimfonijapalanga@gmail.com, tel. Nr. +37068748964

 

Susipažinti su parengtais projektiniais pasiūlymais galima iki 2025-02-07 darbo dienomis, I-IV 9:00-18:00 val., V 9:00-16:45 val., adresu Užkanavės g. 31, Palangoje, iš anksto susitarus tel. (+370 616) 72219; taip pat Palangos miesto savivaldybės internetinėje svetainėje www.palanga.lt

Motyvuotus pasiūlymus dėl projektinių pasiūlymų galima teikti raštu nuo paskelbimo datos iki 2025 m. vasario mėn. 07 d. (imtinai) viešo susirinkimo pabaigos, el. p. a22architektai@gmail.com

Viešas susirinkimas vyks Palangos miesto savivaldybės administracijos pastato 4 aukšto hole, 2025 m. vasario mėn. 07 d. 15.00 -16.00 val.

Projektiniai pasiūlymai

Vizualizacija

Vizualizacija

Informacija atnaujinta 2025-01-22 09:05